Verkocht:Morigerweg 12, 9697 SN Blijham - Foto
Verkocht
+77

Morigerweg 12 9697 SN Blijham

  • Woonhuis
  • 7 kamers
  • 6 slaapkamers
  • 2 badkamers
  • Bouwjaar 1881
  • 4.460 m² perceeloppervlakte
  • 254 m² gebruiksoppervlakte
  • G Energielabel G
www.morigerweg12.nl

Beschrijving

Woonboerderij met zes slaapkamers, bijzonder ruim bemeten schuur en ruimte voor kleinvee!

Kom en ervaar het beste van het buitenleven in Blijham!
Uniek object!
Ontdek een stukje paradijs!

Word 's ochtends wakker met het geluid van fluitende vogels, terwijl de koeien rustig grazen in de naastgelegen wei. Dit huis op een ruim perceel geeft je het gevoel alsof je door je eigen park wandelt. Van weelderige bomen tot een prachtige waterpartij, hier vind je alles om optimaal van het buitenleven te genieten.
Alles binnen handbereik:

In het charmante dorp Blijham, strategisch gelegen tussen Winschoten, Oude Pekela, Vlagtwedde en Bellingwolde, vind je alles wat je nodig hebt. Van een supermarkt en gezellige winkeltjes tot een dorpshuis en een sportcomplex met tal van faciliteiten, inclusief een gymzaal en een tennisvereniging. En vergeet niet het gezellige café met slijterij voor een ontspannen borrel.

Het perfecte plaatje:
Adres: Morigerweg 12, 9697 SN BLIJHAM

Dit vrijstaande, prachtig gerenoveerde woonboerderij biedt alle ruimte die je maar kunt wensen. Met een totale perceeloppervlakte van 4460 m2, inclusief verschillende terrassen, overkappingen, een sfeervolle waterpartij, een rustgevende pergola en diverse soorten (fruit)bomen, is dit een echt paradijs om thuis te komen.

Oneindige mogelijkheden:
Dit woonhuis biedt verschillende mogelijkheden. Van de optie voor een bed and breakfast tot dubbele bewoning, een eigen bedrijf, kantoor aan huis of een praktijkruimte, hier is alles mogelijk.
Dankzij de ruime perceelgrootte is er zelfs voldoende ruimte om kleinvee te houden en echt het buitenleven uit te nutten.
Dit droomhuis is perfect voor levensgenieters die op zoek zijn naar rust, ruimte en eindeloze mogelijkheden. Dus waar wacht je nog op? Ontdek je eigen stukje paradijs in Blijham!

De indeling van dit unieke object is als volgt:
Middels de zij-entree betreedt men de ruime hal met meterkast. Via de hal verkrijgt u toegang tot de ruime badkamer, royaal bemeten woonkamer met zitkuil, wijnkelder, provisiekast, veranda en toegang tot de prachtig aangelegde tuin met waterpartij.

De woonkeuken is gesitueerd aan de voorzijde met verschillende inbouwapparatuur. Grenzend aan de woonkeuken is de slaapkamer op begane grond alsmede toegang via de slaapkamer naar een multifunctionele ruimte/inloopkast.

Aan de achterzijde bevinden zich drie slaap- cq. werkkamers, welke één voorzien is van een vaste kastenwand, ligbad en walk-in badkamer met toilet, inloopdouche en wastafel. De bijkeuken aan de zijkant heeft beschikking over wasmachine-aansluitingen.

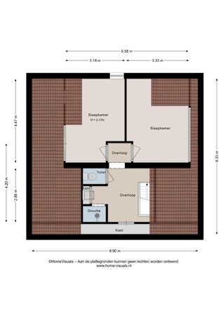
Eerste verdieping:
Een overloop biedt toegang tot een bijzonder diepe voorzolder met c.v. installatie (Remeha HR, 2019), separaat toilet, douchecabine en wastafelmeubel. Tevens zijn er op de verdieping twee slaapkamers aanwezig met o.a. dakkapel en een zeer prettige lichtinval.

Buitenom:
Rust, ruimte en mogelijkheden!
Een grote, hoge schuur/hal van plusminus 135 m², een pergola, waterpartij, voormalig kippenhok en een diepe achtertuin waar men heerlijk kan rondwandelen tussen de verschillende (fruit)bomen.

De diepe achtertuin is ook goed te gebruiken voor wat kleinvee. De grote schuur is voorzien van een extra groepenkast, maar de grootte kan eenvoudig gebruikt worden om de camper te stallen en/of je bijzondere autocollectie te herbergen.

Kenmerken:
- Bouwjaar 1881;
- Perceeloppervlakte: ca. 4.460 m²;
- Woonoppervlakte: ca. 254 m²;
- Externe bergruimte: ca. 134 m²;
- C.v. installatie: Remeha HR, 2019.

Bijzonderheden:
- Deze woonboerderij is voorzien van dakisolatie;
- Deze woonboerderij is nagenoeg geheel v.v. dubbele beglazing;
- Deze woonboerderij zou uitermate geschikt gemaakt kunnen worden voor dubbele bewoning;
- Deze woonboerderij is voorzien van diverse mogelijkheden;
- Deze woonboerderij is voorzien van zowel houten als kunststof kozijnen;

Wacht niet te lang en bel Houdel om deze bijzonder sfeervolle woonboerderij te bezichtigen!

Kaart

Kenmerken

Overdracht

Referentienummer
00580
Vraagprijs
€ 550.000,- k.k.
Status
Verkocht
Aanvaarding
In overleg
Aangeboden sinds
Donderdag 17 april 2025
Laatste wijziging
Woensdag 27 augustus 2025

Bouw

Type object
Woonhuis, woonboerderij, vrijstaande woning
Soort bouw
Bestaande bouw
Bouwperiode
1881
Dakbedekking
Dakpannen
Type dak
Zadeldak
Keurmerken
Energie prestatie advies
Isolatievormen
Dakisolatie
Dubbel glas
Grotendeels dubbel glas
Muurisolatie

Oppervlaktes en inhoud

Perceeloppervlakte
4.460 m²
Woonoppervlakte
254 m²
Inhoud
899 m³
Oppervlakte overige inpandige ruimten
4 m²
Oppervlakte externe bergruimte
134 m²

Indeling

Aantal bouwlagen
2
Aantal kamers
7 (waarvan 6 slaapkamers)
Aantal badkamers
2 (en 1 apart toilet)

Locatie

Ligging
Aan rustige weg

Tuin

Type
Tuin rondom
Hoofdtuin
Ja
Heeft een achterom
Ja
Staat
Prachtig aangelegd

Energieverbruik

Energielabel
G

CV ketel

CV ketel
Remeha HR
Warmtebron
Gas
Bouwjaar
2019
Combiketel
Ja
Eigendom
Eigendom

Uitrusting

Aantal parkeerplaatsen
4
Warm water
CV-ketel
Verwarmingssysteem
Centrale verwarming
Badkamervoorzieningen Badkamer 1
Inloopdouche
Toilet
Badkamervoorzieningen Badkamer 2
Douche
Ligbad
Toilet
Wastafel
Parkeergelegenheid
Vrijstaande stenen garage
Tuin aanwezig
Ja
Heeft een garage
Ja
Heeft een dakraam
Ja

Kadastrale gegevens

Kadastrale aanduiding
Wedde K 952
Perceeloppervlakte
4.460 m²
Omvang
Geheel perceel
Eigendomsituatie
Eigen grond

Opzoek naar een woning?

Schrijf jezelf nu in bij Houdel Makelaardij en reageer op ons actuele aanbod. Wij zullen je per e-mail op de hoogte houden van nieuwe beschikbare woningen, die aansluiten bij je woonwensen.

Schrijf je in