Nieuw in verkoop:Eendrachtstraat 12, 7742 SZ Coevorden - Foto
Nieuw in verkoop
+106

Eendrachtstraat 12 7742 SZ Coevorden € 775.000,- k.k.

  • Woonhuis
  • 9 kamers
  • 8 slaapkamers
  • 2 badkamers
  • Bouwjaar 1921
  • 1.105 m² perceeloppervlakte
  • 335 m² gebruiksoppervlakte
  • A Energielabel A
www.eendrachtstraat12.nl

Beschrijving

**Bijzondere kans! **
Uniek rijksmonument mét een rijke historie aan de Eendrachtstraat 12.
Ben jij op zoek naar een huis dat niet alleen met z’n uitstraling, maar ook met z’n geschiedenis imponeert? Iets wat je zelden tegenkomt en waar achter elke deur een bijzonder verhaal schuilt? Dan is deze voormalige Marechausseekazerne aan de Eendrachtstraat 12 in Coevorden zonder twijfel jouw felbegeerde buitenkans. Maak je borst maar nat, want dit is écht anders dan anders.

**Wonen met karakter en historie**
Laten we eerlijk zijn, huizen zoals deze zie je niet dagelijks voorbij komen. Gebouwd in 1921 en inmiddels aangemerkt als rijksmonument ademt het pand één en al klasse, vakmanschap én nostalgie. Kijk je even omhoog, dan vallen direct die hoge plafonds én originele sierlijsten in het oog. Wat betreft het metselwerk en het voegwerk – daar valt je mond gegarandeerd van open. Hier zie je nog ambacht, er is écht nagedacht over ieder detail. Dit is erfgoed waar je trots op mag zijn.

Een niet-alledaagse geschiedenis hoort daar natuurlijk bij. Waar ooit de Marechaussee haar intrek nam en waar wapenkamers, cellen en zelfs schietbakken deel uitmaakten van de dagelijkse gang van zaken, biedt dit herenhuis nu ruimte voor modern gezinsleven zónder het unieke verleden te verloochenen. Sommige kenmerken zijn verdwenen, maar het verhaal spookt nog altijd op een positieve manier door de vertrekken.

**Ruimte tekort? Geen sprake van!**
Met maar liefst 1.105 m² perceeloppervlakte heb je hier alle ruimte voor jouw plannen en dromen. De woning zelf is halfvrijstaand en beschikt over verrassende elementen, zoals een entresol die zorgt voor een speelse indeling en nog meer gevoel van vrijheid. Of je nu graag een thuiswerkplek creëert, een atelier wenst, of gewoon toe bent aan meer leefruimte: mogelijkheden genoeg.
Aan de achterkant vind je het oude bijgebouw dat vroeger dienstdeed als verhoorkamer. Tegenwoordig is dit omgetoverd tot een heerlijke ruimte met een eigen woonkamer, een kleine maar praktische keuken, badkamer én toilet. Ideaal voor logees, oudere kinderen, of misschien wel een kantoor aan huis! En dan hebben we het nog niet eens gehad over de vrijstaande stenen garage, twee royale opritten voor al je auto's én een carport aan de zijkant. Waar vind je dat nog?

**Stap in een duurzame toekomst**
Dat oude woningen niet per definitie koud en tochtig hoeven te zijn, bewijst deze bijzondere Marechausseekazerne met gemak. Je geniet hier van energielabel A: een zeldzaamheid voor zo’n monument. Dankzij gedeeltelijk dubbele beglazing, een Remeha cv-installatie uit 2010, een gezellige woonkeuken mét ingebouwde pelletkachel, zonneboiler én twaalf zonnepanelen uit 2022 (elk goed voor 400 Wp), loop je hier voorop op het gebied van energiezuinig wonen. Comfort en authenticiteit gaan hier dus perfect samen.

Als bonus kun je voor het onderhoud 35% terugvorderen – da’s mooi meegenomen voor zo’n bijzonder object. Check vooral ook de genoemde website voor alle details hierover.

**Het stadsleven van Coevorden binnen handbereik**
Rust, ruimte én voorzieningen dichtbij – dat vind je hier allemaal. Coevorden zelf is een historische stad, waar het heerlijk wonen én leven is. Alles wat je maar nodig hebt, zoals winkels, scholen, restaurants en cultuur vind je op korte afstand. Ideaal voor als je het beste van twee werelden wilt combineren: monumentaal wonen én het gemak van de stad.

**Heb jij lef? Pak deze kans!**
De indeling van dit zeer bijzondere object is als volgt:
Middels een imposante entree betreedt men de hal van de oude marechaussee kazerne. De hal die vroeger toegang gaf tot de vroegere balie wat nu kantoorruimte is en de wapenkamer wat nu fungeert als toiletruimte met fonteintje. Aan de linkerzijde van de woning vindt u de royale woonkeuken met toegang tot de achtertuin, maar ook toegang tot de kelderruimte alsmede de woonkamer met kamer-en-suite deuren.

De woonkeuken (Tulp) is qua apparatuur voorzien van koelkast, vaatwasser, combimagnetron en 4-pits gaskookplaat, wokbrander en afzuigkap. De woonkeuken is tevens voorzien van heerlijke warmte dmv een pelletkachel. Aan de achterzijde bevinden zich o.a. de oude celruimte (nu in functie als stookruimte met o.a. c.v. installatie (Remeha HR, 2010), zonneboiler en boilervat.)
De bijkeuken is voorzien van schoenenkast, deur naarbuiten, wasruimte alsmede de tussenhal.

Aangebouwde bijgebouw:
Een separate hal met meterkast biedt toegang tot een woonkamer, keukenruimte (met keramische kookplaat en afzuigkap), badkamer v.v. douche, wastafel, toilet en één slaapkamer.

Het bijgebouw is overigens oorspronkelijk gebouwd als paardenstal, toen de marechaussee nog geen auto's had, maar later als de verhoorruimte met o.a. een spiekoog. Op het bijgebouw liggen 12 zonnepanelen, in 2022 gelegd met 400 wp per paneel.

Buitenom:
Vrijstaande geïsoleerde garage, sfeervolle tuin rondom met meerdere terrassen, oude hek van de marechaussee, meerdere opritten voor auto’s en een carport.

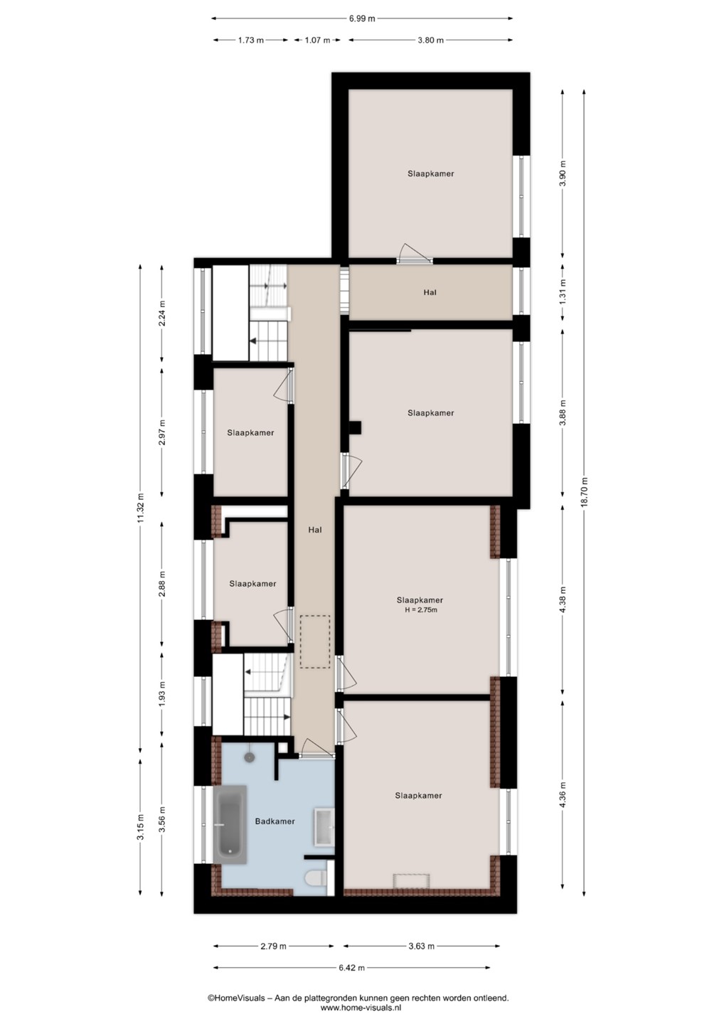
Eerste verdieping:
Middels een sierlijke trapopgang met entresol bereikt men de eerste verdieping met overloop, zes (slaap-)kamers en een badkamer. De badkamer is voorzien van ligbad, wastafelmeubel, toilet en wastafelmeubel. Vloerverwarming op de retourleiding.

Middels vaste trap bereikbare..

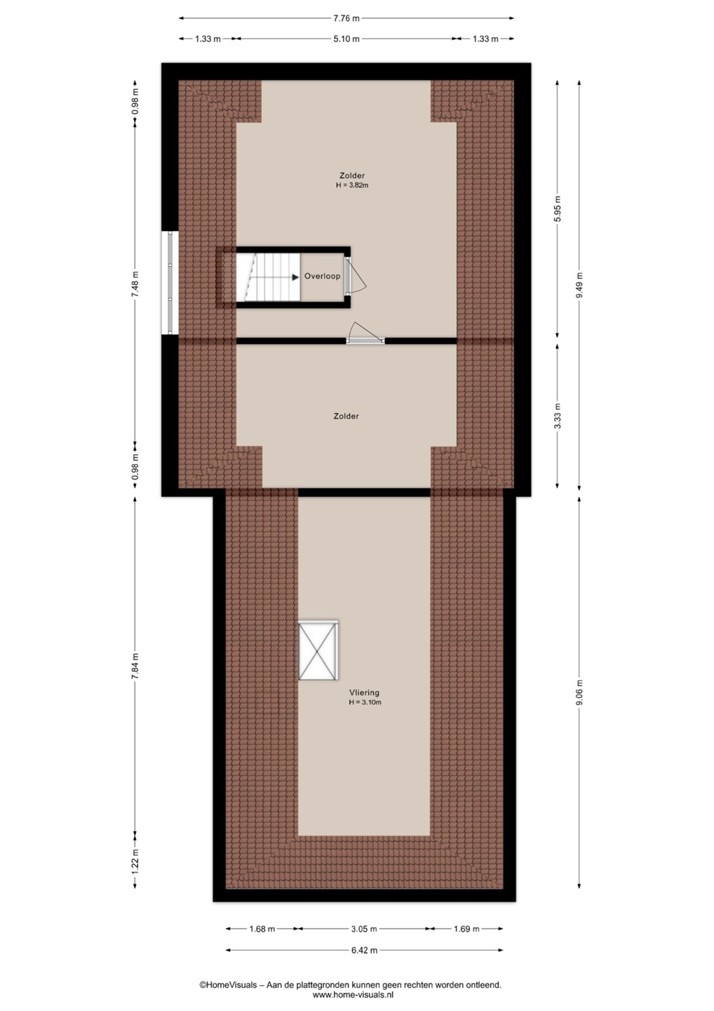
Tweede verdieping:
Ruime bergzolder met eerste wtw-installatie.
Middels vlizotrap op eerste verdieping bereikbare..
Tweede zolderruimte met tweede wtw installatie.

Kortom, Eendrachtstraat 12 is absoluut geen doorsnee woning – dit is een uniek object voor mensen met visie en gevoel voor karakter, die niet bang zijn hun hart te verliezen aan een stukje Nederlandse historie. Zo'n kans krijg je simpelweg zelden. Durf jij het aan om te wonen in een pand boordevol verhalen en mogelijkheden?

Eén ding is zeker: zodra je hier je sleutel omdraait, weet je… dit is ‘m.

Plan snel een bezichtiging en laat je verrassen door alles wat deze parel je te bieden heeft!

Extra bijzonderheden:
- Bouwjaar 1921;
- Energielabel A!
- Qua onderhoud is 35% declarabel;
- Schilderwerk 2024 (met speciale lak);
- Speciale manier van metselen en voegen;
- 3-zone verwarming (apart te verwarmen).

Kaart

Kenmerken

Overdracht

Referentienummer
00642
Vraagprijs
€ 775.000,- k.k.
Status
Nieuw in verkoop
Aanvaarding
In overleg
Aangeboden sinds
Dinsdag 7 april 2026

Bouw

Type object
Woonhuis, herenhuis, half vrijstaande woning
Soort bouw
Bestaande bouw
Bouwperiode
1921
Dakbedekking
Dakpannen
Type dak
Schilddak
Isolatievormen
Grotendeels dubbel glas
HR-glas
Muurisolatie
Spouwmuren

Oppervlaktes en inhoud

Perceeloppervlakte
1.105 m²
Woonoppervlakte
335 m²
Inhoud
1.333 m³
Oppervlakte overige inpandige ruimten
24 m²
Oppervlakte externe bergruimte
17 m²

Indeling

Aantal bouwlagen
3 (en 1 kelder)
Aantal kamers
9 (waarvan 8 slaapkamers)
Aantal badkamers
2 (en 1 apart toilet)

Tuin

Type
Tuin rondom
Hoofdtuin
Ja
Heeft een achterom
Ja
Staat
Prachtig aangelegd

Energieverbruik

Energielabel
A

CV ketel

CV ketel
Remeha HR
Warmtebron
Gas
Bouwjaar
2010
Combiketel
Ja
Eigendom
Eigendom

Uitrusting

Aantal parkeerplaatsen
6
Aantal overdekte parkeerplaatsen
2
Warm water
CV-ketel
Zonneboiler
Verwarmingssysteem
Centrale verwarming
Pelletkachel
Badkamervoorzieningen Badkamer 1
Douche
Toilet
Wastafel
Badkamervoorzieningen Badkamer 2
Douche
Ligbad
Toilet
Vloerverwarming
Wastafelmeubel
Parkeergelegenheid
Carport
Garage
Heeft kabel-tv
Ja
Glasvezelaansluiting aanwezig
Ja
Tuin aanwezig
Ja
Heeft een garage
Ja
Beschikt over een internetverbinding
Ja
Heeft een dakraam
Ja
Heeft zonnepanelen
Ja

Kadastrale gegevens

Kadastrale aanduiding
Coevorden D 5213
Perceeloppervlakte
1.105 m²
Omvang
Geheel perceel
Eigendomsituatie
Eigen grond

Opzoek naar een woning?

Schrijf jezelf nu in bij Houdel Makelaardij en reageer op ons actuele aanbod. Wij zullen je per e-mail op de hoogte houden van nieuwe beschikbare woningen, die aansluiten bij je woonwensen.

Schrijf je in