Verkocht:Het Refter, 7693 NA Sibculo - Foto
Verkocht

Het Refter 7693 NA Sibculo

  • Woonhuis
  • 4 kamers
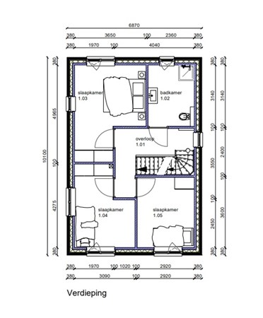
  • 3 slaapkamers
  • 1 badkamers
  • Bouwjaar 2025
  • 499 m² perceeloppervlakte
  • 140 m² gebruiksoppervlakte
  • A++ Energielabel A++
www.refter.nl

Beschrijving

Droom jij van een gloednieuw huis in het pittoreske Sibculo aan het Refter? Dan hebben wij het perfecte plekje voor jou! Check dit: een te gekke kavel inclusief supermoderne nieuwbouwwoning die naar verwachting in het vierde kwartaal van 2025 gebouwd zal worden. Hier gaat jouw hart sneller van kloppen!

Hier zal jouw droom werkelijkheid worden.
Dit woonhuis is alles wat je zoekt: vrijstaand, ideaal voor jonge gezinnen en doorstromers. Met een enorme tuin rondom van maar liefst 493 m2, heb je alle ruimte om heerlijk te relaxen onder de stralende zon. En guess what? Het energielabel is A++, dus deze woning is niet alleen prachtig, maar ook nog eens super duurzaam! Met een warmtepomp en 12 zonnepanelen ben je helemaal klaar voor de toekomst.

### Jouw eigen stekkie
Deze vrijstaande woning wordt geleverd met een aangebouwde stenen berging. En weet je wat het beste is? Je krijgt ook nog eens voldoende keuzemogelijkheden om jouw nieuwe vrijstaande woning helemaal naar jouw smaak in te richten. Hoe cool is dat? De impressies zijn slechts de basis die kunnen worden uitgebreid.

Klaar om jouw eigen plekje in Sibculo te vinden? Neem snel contact op met ons kantoor en bel Houdel!
Deze woning wacht op jou!

Ruim en comfortabel:
Met een beukmaat van meer dan 6 meter en een dieptebeukmaat van meer dan 10 meter, biedt deze woning genoeg ruimte voor al jouw wensen. De aangebouwde berging zorgt ervoor dat je nooit meer hoeft te zoeken naar extra opbergruimte. En het beste van alles: je hebt de mogelijkheid om de woning af te nemen met een keuken/badkamer pakket tegen meerprijs. Het enige waar jij je zorgen over hoeft te maken is welke kleur je op de muren wilt!

Ideaal voor jonge gezinnen en doorstromers:
Dit huis is perfect voor iedereen die op zoek is naar een betaalbare optie met veel ruimte. Of je nu een jong gezin hebt dat meer ruimte nodig heeft, of een doorstromer die op zoek is naar een nieuwe uitdaging, deze woning biedt voor elk wat wils.

Waar wacht je nog op? Bel Houdel vandaag nog en maak jouw droom van betaalbaar wonen werkelijkheid!

Verwachte start bouw Q4 van 2025 en nog allerlei opties mogelijk.

Kaart

Kenmerken

Overdracht

Referentienummer
00536
Vraagprijs
€ 420.025,- v.o.n.
Status
Verkocht
Aanvaarding
In overleg
Aangeboden sinds
Vrijdag 11 oktober 2024
Laatste wijziging
Vrijdag 8 augustus 2025

Bouw

Type object
Woonhuis, eengezinswoning, vrijstaande woning
Soort bouw
Nieuwbouw
Bouwperiode
2025
Dakbedekking
Dakpannen
Type dak
Schilddak
Keurmerken
Algemene woning keur
Isolatievormen
Volledig geïsoleerd

Oppervlaktes en inhoud

Perceeloppervlakte
499 m²
Woonoppervlakte
140 m²
Inhoud
567 m³
Oppervlakte overige inpandige ruimten
12 m²

Indeling

Aantal bouwlagen
3
Aantal kamers
4 (waarvan 3 slaapkamers)
Aantal badkamers
1 (en 1 apart toilet)

Locatie

Ligging
Aan rustige weg
In woonwijk

Tuin

Type
Tuin rondom
Hoofdtuin
Ja
Heeft een achterom
Ja

Energieverbruik

Energielabel
A++

Uitrusting

Verwarmingssysteem
Warmtepomp
Tuin aanwezig
Ja
Heeft schuur/berging
Ja
Heeft zonnepanelen
Ja

Kadastrale gegevens

Kadastrale aanduiding
Hardenberg Z 12345
Perceeloppervlakte
499 m²
Omvang
Geheel perceel
Eigendomsituatie
Eigen grond

Media

Foto's

Plattegronden

Opzoek naar een woning?

Schrijf jezelf nu in bij Houdel Makelaardij en reageer op ons actuele aanbod. Wij zullen je per e-mail op de hoogte houden van nieuwe beschikbare woningen, die aansluiten bij je woonwensen.

Schrijf je in